Silver Maple Series
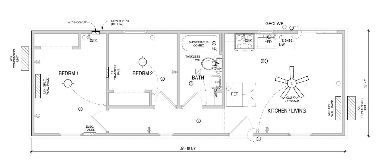
Our standard 2 bedroom 1 bath floor plan that is packed with all the same features and amenities as our White Oak series but also we have a few options that can be customized to suite your specific needs.
Our standard 2 bedroom 1 bath floor plan that is packed with all the same features and amenities as our White Oak series but also we have a few options that can be customized to suite your specific needs.